Saffer Family Home Renovation

Client: Saffer’s Family

With the idea of creating a forever home that incorporates warm tones and a clean style, this space holds family memories while maintaining a contemporary feel. This house will not only be an option for the post-early-morning soccer-game hangout, but also the one where everyone feels welcome. The inclusion of natural materials paired with sleek, solid white quartz makes the space feel brand new but like it’s carrying the story of the family in the home.

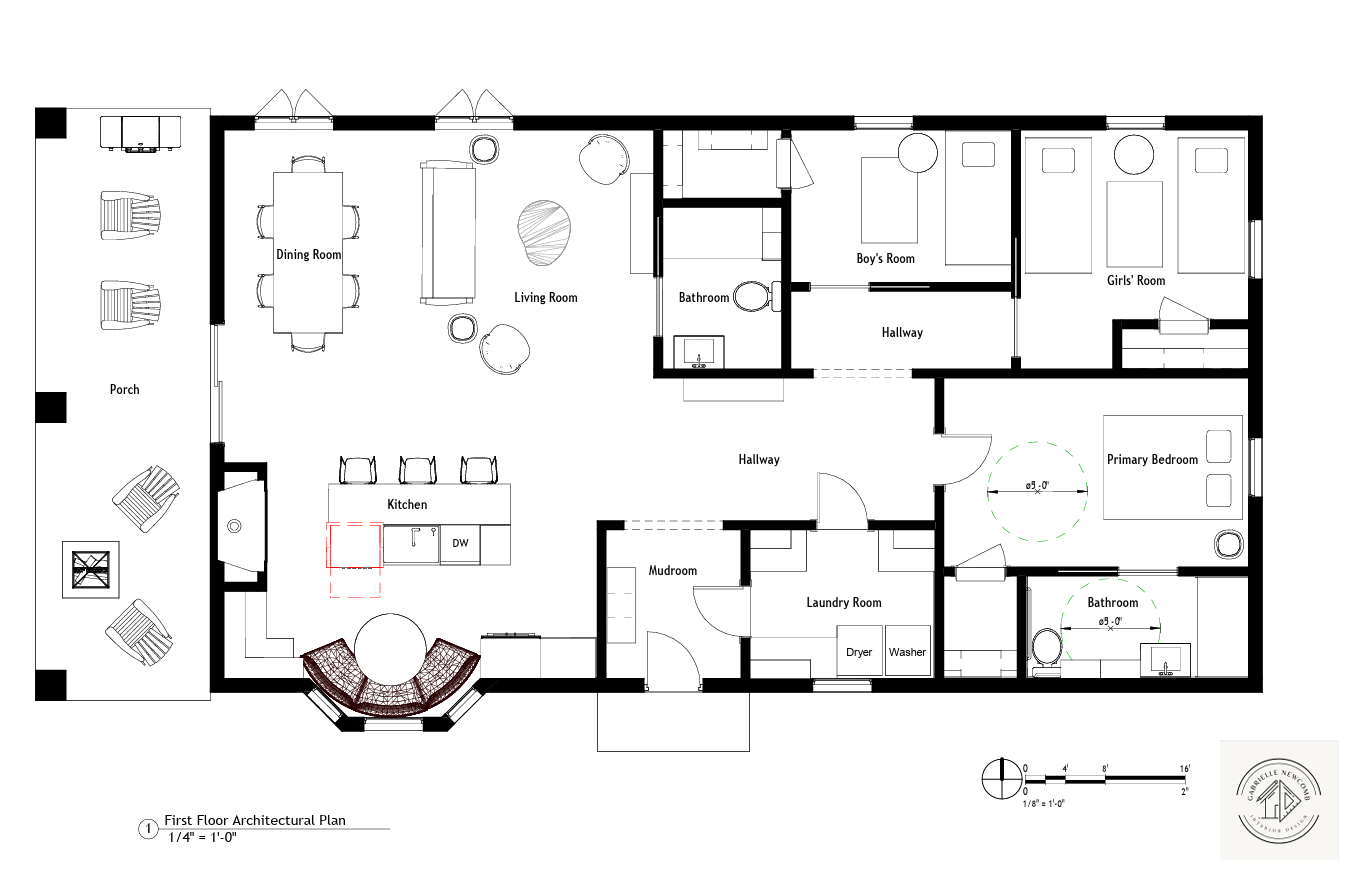
Floor Plan

Created in Revit

Mood Board

Lumion Renderings

Next
Next

The Gathering Church Project