Palmer Project

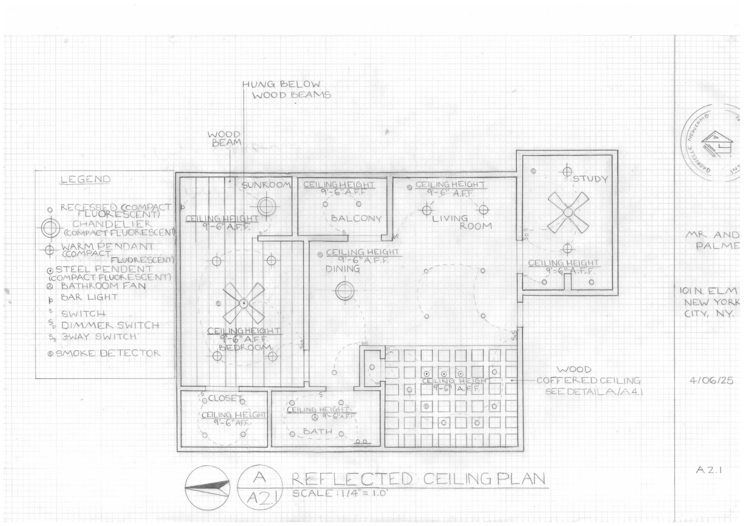
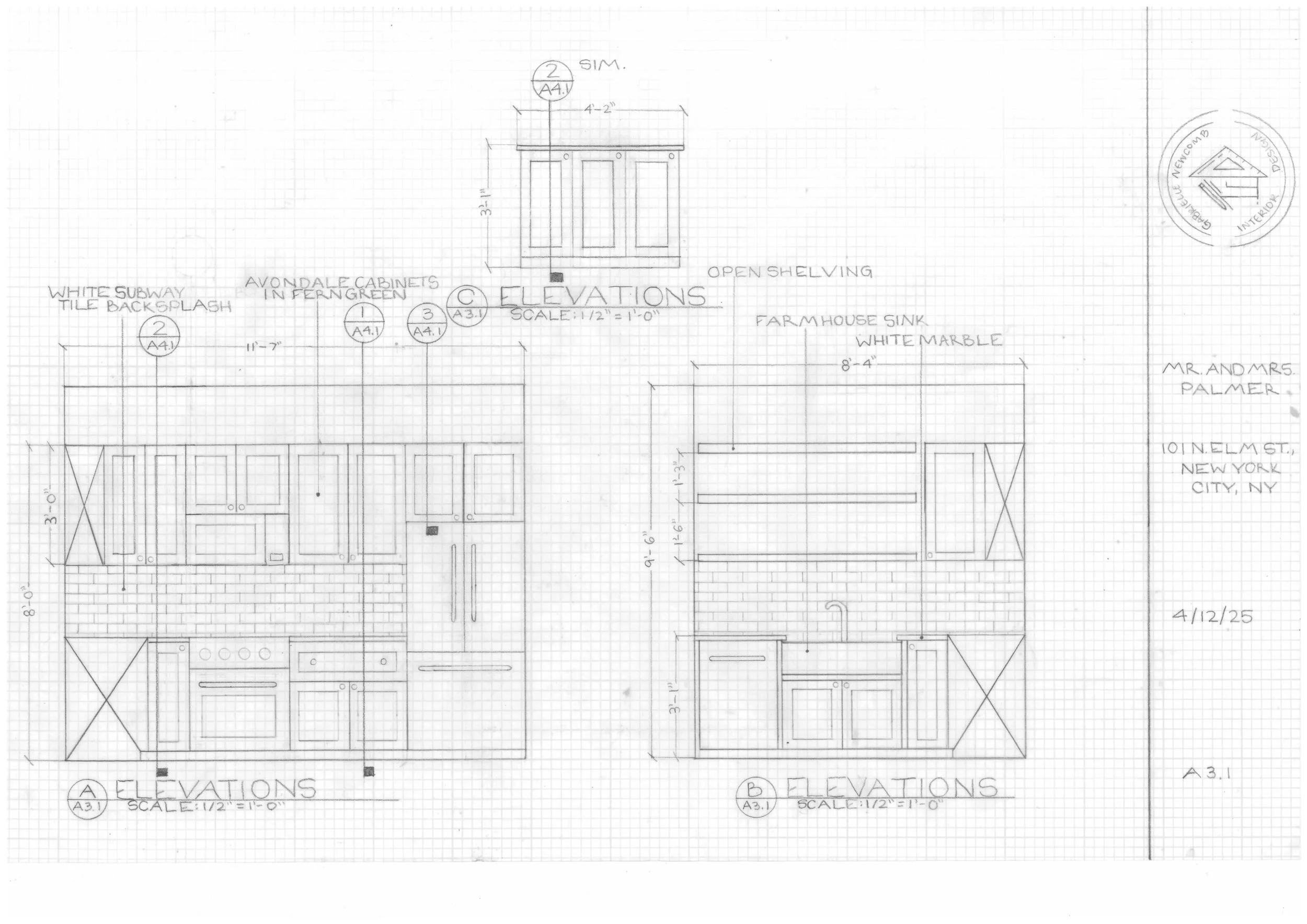
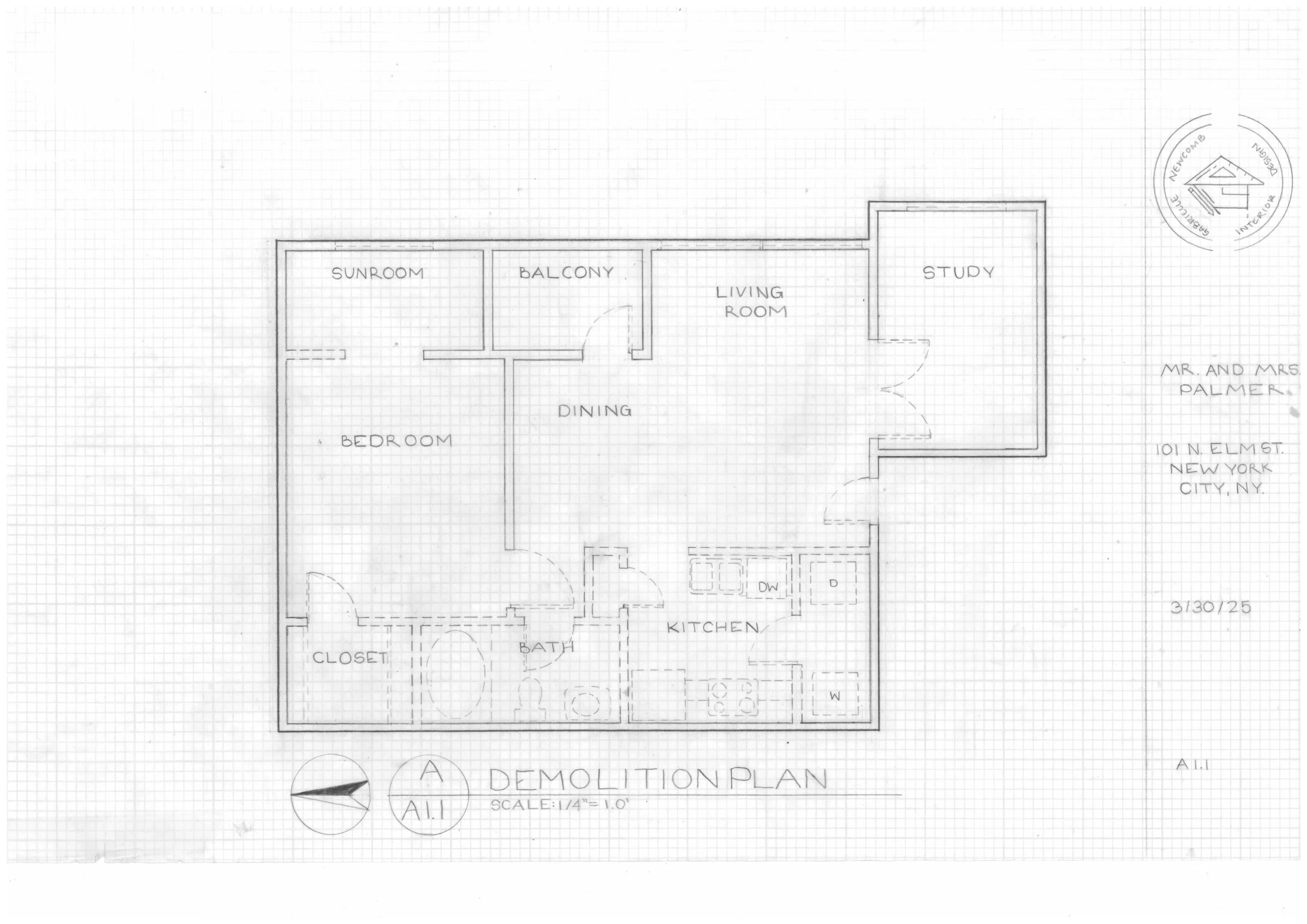
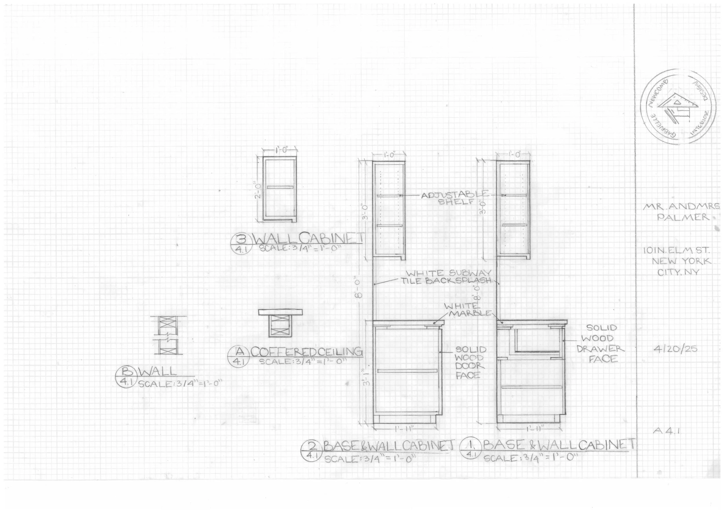
This is a full apartment renovation that was hand-drafted to add a guest bedroom and create an open concept for the main living areas, creating better flow through the kitchen, dining room, and living room. Also, the addition of a coffered ceiling in the kitchen and wood beams in the primary bedroom adds texture to the limited space this project allows.

Previous
Previous

Women's Retail Store Project