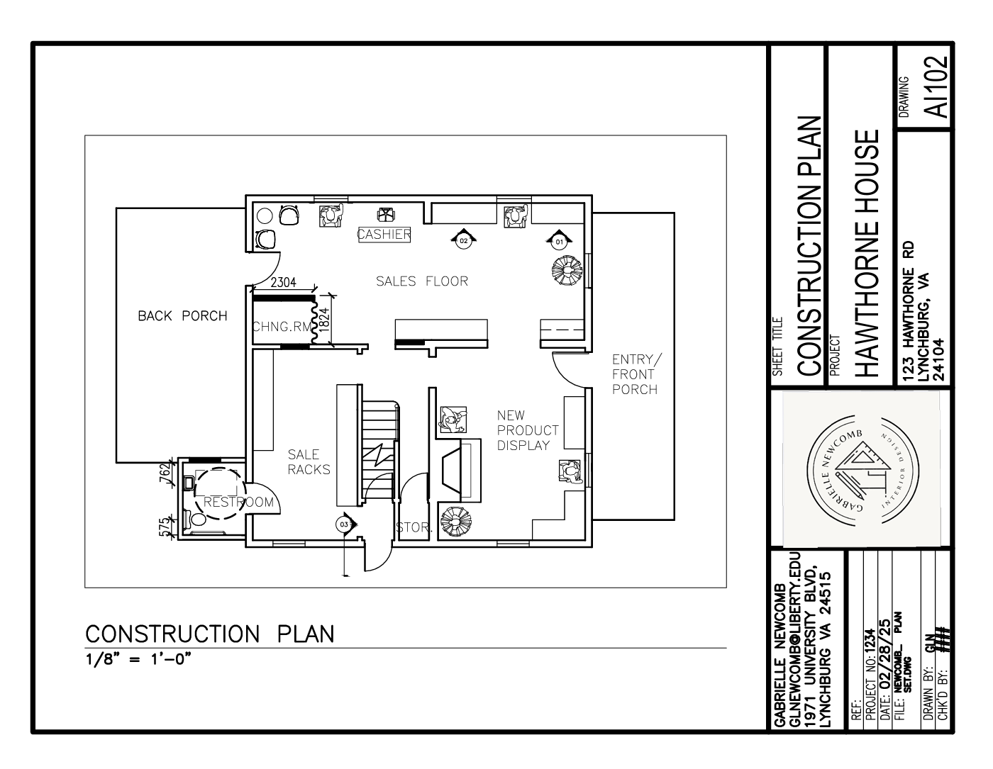
Residential Home to Commercial Store

This design process is about transforming the Hawthorne House into an upscale ladies’ clothing store drawn in AutoCAD. To accomplish this, I demolished the kitchen and small bathroom to create a usable space for the store owner. A good portion of the interior doors were taken out, and part of a wall separating two spaces was demolished to create an easier flow for the customer traffic in the store. The laundry room was transformed into an ADA bathroom by taking out the exterior door in the space.

Previous
Previous

Ropella Family Home Renovations

Next
Next

Palmer Project